
Das Carport 'Fichtelberg' ist aus Leimholz gefertigt. Dieses besteht aus mehreren getrockneten, der Länge nach durch Keilzinkung verbundenen Lagen. Diese werden übereinander wetterfest verleimt. So entsteht ein tragfähiger Balken, der gegenüber natürlich gewachsenem Holz verwindungsärmer ist und weniger zur Rissbildung neigt. Dieser Bausatz ist farblich unbehandelt. Hölzer im Außenbereich sind der ständigen Witterung, sowie dem Risiko von Pilz- und Insektenbefall ausgesetzt. Daher ist ein regelmäßiger Schutzanstrich unbedingt erforderlich. Der allseitige Erstanstrich sollte vor der Montage erfolgen. Verwende zuerst Holzschutzgrund zum Schutz gegen Pilz und Insektenbefall. Anschließend, gegen Verfärbung und Schäden durch UV-Licht, je eine Zwischen- und Schlussbeschichtung mit hochwertiger Holzschutzlasur oder -farbe. Rechne mit Pflegeintervallen von ca. 4-5 Jahren, spätestens aber vor dem Eintreten sichtbarer Schäden. Beachten Sie dazu auch die Verarbeitungsrichtlinien des Lasurherstellers. Das Dach wird mit 19 mm starker Dachschalung aus Massivholz zur Eindeckung mit Dachschindeln geliefert. Die 60 cm langen H-Anker aus verzinktem Flachstahl zum Einbetonieren in das bauseitig erstellte Punktfundament (Größe und Ausführung siehe Montageanleitung) sind im Bausatz enthalten. Sie verbinden die Pfosten fest mit dem Untergrund und sorgen für hohe Stabilität.
| Maße & Gewichte | |
|---|---|
| Bauhöhe hintenBauhöhe hinten | 362 cm |
| Bauhöhe vorneBauhöhe vorne | 362 cm |
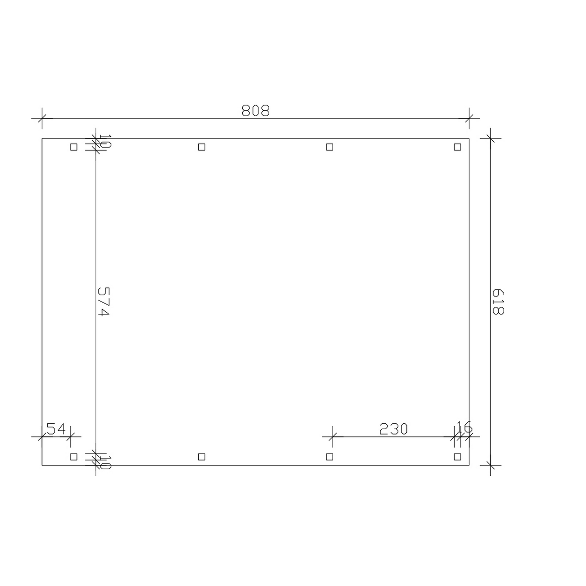
| Breite inkl. DachüberstandBreite inkl. Dachüberstand | 618 cm |
| DachstärkeDachstärke | 20 mm |
| EinfahrtsbreiteEinfahrtsbreite | 574 cm |
| Einfahrtshöhe hintenEinfahrtshöhe hinten | 225 cm |
| Einfahrtshöhe vorneEinfahrtshöhe vorne | 225 cm |
| GewichtGewicht | 1886 kg |
| Sockelmaß BreiteSockelmaß Breite | 598 cm |
| Sockelmaß TiefeSockelmaß Tiefe | 726 cm |
| Tiefe inkl. DachüberstandTiefe inkl. Dachüberstand | 808 cm |
| Produktdetails | |
| Anzahl PfostenAnzahl Pfosten | 8 |
| ArtikeltypArtikeltyp | Doppelcarport |
| DachflächeDachfläche | 54,14 m² |
| DachneigungDachneigung | 20 ° |
| GarantieGarantie | 5 Jahr(e) |
| GrundflächeGrundfläche | 49,93 m² |
| NeigungsrichtungNeigungsrichtung | Zur Seite |
| PfostenabstandPfostenabstand | 230 cm |
| PfostenstärkePfostenstärke | 12 x 12 cm |
| SchneelastSchneelast | 153 kg/m² |
| Lieferinformationen | |
| LieferumfangLieferumfang | 1 x Carport |
| Nicht im LieferumfangNicht im Lieferumfang | Fundament |
| Weitere Eigenschaften | |
| Art des DachesArt des Daches | Satteldach |
| DacheindeckungDacheindeckung | Bitumen |
| FarbeFarbe | Nussbaumfarben |
| MarkeMarke | SKAN HOLZ |
| MaterialMaterial | Holz |
| MaterialspezifizierungMaterialspezifizierung | Leimholz, Fichte |
| OberflächenbehandlungOberflächenbehandlung | holzschutzlasiert |
| SerieSerie | Fichtelberg |
| Herstellerinformationen | |
| HerstellernameHerstellername | SKAN HOLZ Europe GmbH |
| AnschriftAnschrift | Im Alten Dorfe 10, 21227 Bendestorf |
| TelefonnummerTelefonnummer | +49 4183 97500 |
| E-Mail-AdresseE-Mail-Adresse | info@skanholz.com |